- Элитная недвижимость
- Продажа городской недвижимости
- Квартира: 3416
увеличить
закрыть
Квартира: 3416
| Стоимость |
379 405 245
$4 671 000 |
| Стоимость за м2 | 1 218 386 / 15 000 $ |
Дом на Покровском бульваре |
|
| Район: | Чистые пруды |
| Адрес: | Казарменный пер-к 3 |
| Метро: | Чистые пруды |
| Тип недвижимости: | Квартира |
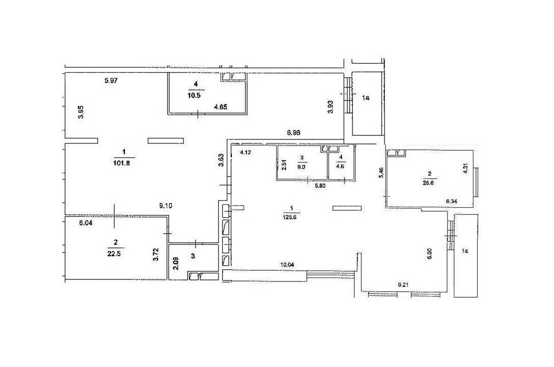
| Площадь | |
| Общая | 311.4 м2 |
| Жилая | 200 м2 |
| Кухня | 20 м2 |
| Комнат | 6 |
| Спален | 5 |
| Санузлов | 4 |
| Этаж | 8/10 |
| Готовность | без отделки |
| Мебель | нет |
| Объект | ID:3416 |
| в избранное |
ОПИСАНИЕ
Многокомнатная квартира без отделки. Можно сделать пять спален, 4 санузла, гостиную, совмещенную с кухней, кабинет. Окна выходят на три стороны. Две лоджии. Лифт поднимается прямо в квартиру. Дом на Покровском бульваре - это уютный комплекс с внутренними дворами и стеклянной галереей. В инфраструктуру комплекса входит салон красоты, СПА-салон, тренажерный зал, детская площадка и подземный паркинг. Дом расположен в одном из самых спокойных и респектабельных районов Москвы. В ближайшем окружении находятся магазины, рестораны, парки, престижные клиники и школы, разнообразная досуговая инфраструктура.
похожие объекты
-
Дом "Чистые Пруды"Район: Чистые прудыПлощадь: 392.2 м2Комнат: 6 комнатГотовность: без отделкиID:3570 1 627 300 000 -
TurgenevРайон: Чистые прудыПлощадь: 295.6 м2Комнат: 5 комнатГотовность: с отделкойID:3456 цена по запросу -
Дом на Покровском бульвареРайон: Чистые прудыПлощадь: 142.6 м2Комнат: 3 комнатыГотовность: без отделкиID:2733 173 010 741 -
Дом ChkalovРайон: Чистые прудыПлощадь: 96.6 м2Комнат: 4 комнатыГотовность: с отделкойID:3263 82 839 000 -
Дом "Чистые Пруды"Район: Чистые прудыПлощадь: 176.5 м2Комнат: 4 комнатыГотовность: без отделкиID:3568 407 350 000 -
АбрикосовРайон: Чистые прудыПлощадь: 95 м2Комнат: 2 комнатыГотовность: без отделкиID:3534 151 069 072 -
Дом ChkalovРайон: Чистые прудыПлощадь: 72 м2Комнат: 3 комнатыГотовность: с отделкойID:3262 54 000 000 -
Дом ChkalovРайон: Чистые прудыПлощадь: 34.6 м2Комнат: 2 комнатыГотовность: с отделкойID:3255 35 100 000







