Офис в жилом здании: 2926
| Стоимость |
200 000 000
$2 508 479 |
| Стоимость за м2 | 289 855 / 3 635 $ |
М. Филевская ул. 40 |
||
| Метро | Пионерская | |
| Район | Филевский парк | |
| Адрес | М. Филевская ул. 40 | |
| Тип | Офис в жилом здании | |
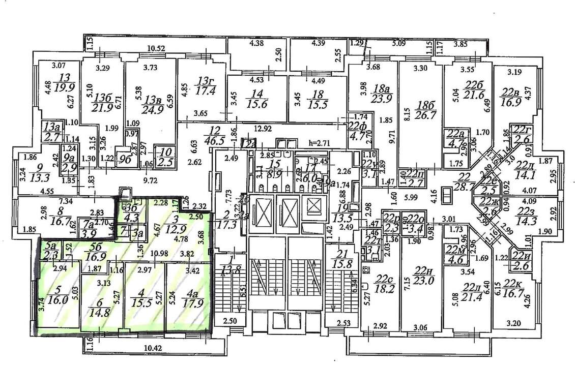
| Площадь | 690 м2 |
| Этаж | 2 / 24 |
| Готовность | с отделкой |
| Объект | ID:2926 |
| в избранное |
ОПИСАНИЕ
К продаже предлагается нежилое помещение в жилом комплексе премиум-класса "Суворов Парк". Дом расположен в парке, в экологически чистом западном округе, в непосредственной близости от природно-исторического комплекса. Имеет огороженную охраняемую и благоустроенную территорию с детской площадкой. Помещение для продажи находится на 2 этаже, имеет отдельный вход. Выполнена офисная отделка. Идеально подходит для размещения клиники, детского сада или офиса.



